分離機 / 脱水機
SEPARATOR / DEHYDRATOR

特長
- 含油排水の脱水が可能
- 場所を選ばず設置が容易
- メンテナンスが簡単
- 洗浄水が少ない
- 振動・騒音・臭気が少ない
- 運転は簡単全自動
- 省エネルギー
フロー
フロー図の破線内側にある機器がパッケージ化されています。原液と薬品を凝集槽へ供給し、脱水ケーキはケーキシュートより、濾液は濾液出口よりそれぞれ排出されます。
原理
- 1重力濾過による分離脱水
- 重力濾過による分離を基本原理としています。
重力作用による濾過ですので、加圧や真空の動力は必要としません。
金網や濾布に相当する濾材は、多数の薄板円板とスペーサーとの組み合わせによって構成された濾体群です。
脱水槽の中には、多数の円筒状の濾体が組み込まれて、大きな濾過面積を確保しています。
凝集フロックは濾体の上で捕捉されてケーキとなり、液体は薄板円板間の隙間を流下し分離収集されて濾液出口から排出されます。
- 2水切り作用と圧密作用による脱水
-
濾体群は一定方向へ緩やかに回転し、凝集フロックからなるケーキは濾体上をケーキ出口に向かって移送されて行き、最後は液面上に露出し、水切り効果によってケーキ水分を低下させていきます。このときケーキ出口直前の濾体の回転数を一段低く抑えることによってケーキの圧密を生じさせ、さらに脱水の促進を図ります。
こうして水切り効果と圧密効果によって脱水されたケーキは出口に向かって押し出されていきます。
- 3ケーキ層の掻き取りによる濾過面の自動更新
- 濾体上に堆積した凝集フロックは、濾体の緩やかな回転によって自動的に掻き取られ、脱水ケーキ出口方向へ移送されていきます。
このことによって、濾過面は常に更新されて、液体の流路が確保され、効率的な濾過速度が維持されます。
- 4濾体の洗浄
- 濾過面は濾片相互の掻き取り作用によって、常に更新されますが、さらに確実を期するため、一定時間ごとに、圧力水を噴射して洗浄を行い、濾液通路の目詰まりを除去して、濾過能力を維持します。
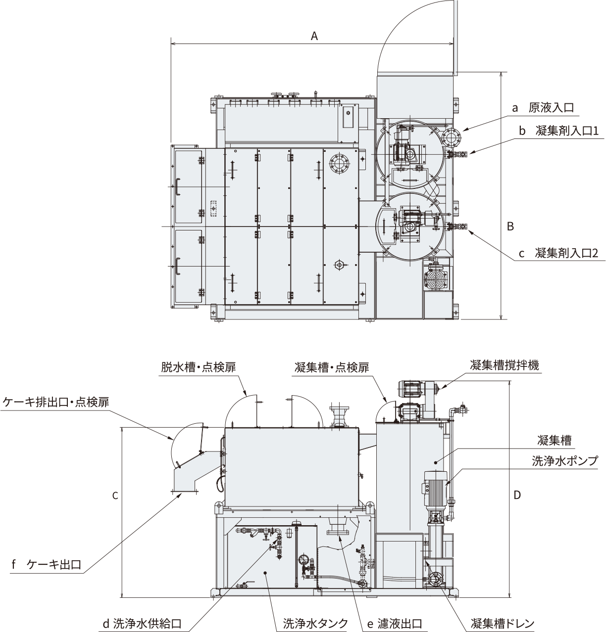
寸法図
PD-250Ⅱ~PD-2000Ⅱ

仕様
濾体幅(mm) | 外形寸法(mm) | ||||
---|---|---|---|---|---|
A | B | C | D | ||
PD-250Ⅱ | 250 | 2647 | 1035 | 1540 | 1845 |
PD-500Ⅱ | 500 | 2647 | 1120 | 1540 | 1845 |
PD-750Ⅱ | 750 | 2647 | 1230 | 1540 | 1930 |
PD-1000Ⅱ | 1000 | 2647 | 1480 | 1540 | 1930 |
PD-1500Ⅱ | 1500 | 2737 | 2400 | 1652 | 2150 |
PD-2000Ⅱ | 2000 | 2737 | 2650 | 1652 | 2150 |
動力(kW) | 重量 (Ton) 乾燥時 |
洗浄水量 (m3/日) *注1 |
|||
---|---|---|---|---|---|
駆動装置 | 攪拌機 | 洗浄水ポンプ | |||
PD-250Ⅱ | 0.4 | 0.2 | 1.1 | 2.00 | 1.0~1.5 |
PD-500Ⅱ | 0.4 | 0.2 | 1.1 | 2.45 | 1.0~1.5 |
PD-750Ⅱ | 0.6 | 0.4 | 2.2 | 2.85 | 2.0~2.5 |
PD-1000Ⅱ | 0.6 | 0.4 | 2.2 | 3.10 | 2.0~2.5 |
PD-1500Ⅱ | 1.15 | 0.75×2 | 3.0 | 5.40 | 3.5~4.0 |
PD-2000Ⅱ | 1.15 | 0.75×2 | 3.0 | 6.50 | 3.5~4.0 |
- 注1. 洗浄水量は、1時間毎に6分間の洗浄を1日10時間行った場合の値です。